2019年元月8日,新年初始,開盤之際。中房聯合投資股份張文清董事長一行考察了昆明東華社區舊改項目。
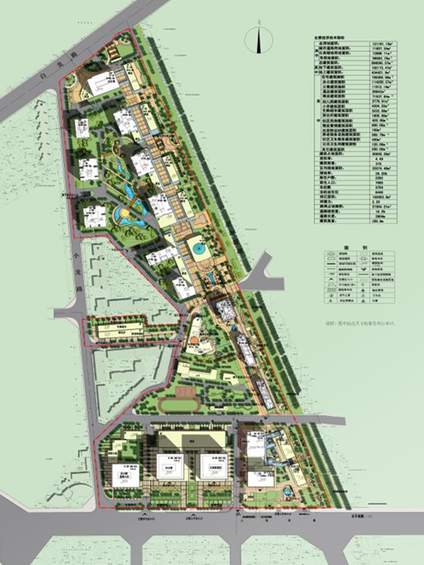
中房集團昆明公司閆立董事長全麵介紹了東華舊改項目的情況。中房▪路易公元位於昆明人民東路與小龍路旁,總淨用地麵積為145畝,建築麵積約60萬平米的建築群體。一期工程用地為27.3畝,總建築麵積約10.9萬平米,已經完成開發建設。二期工程用地為79.8畝,建築麵積為29.5萬平米,三期工程用地為37.8畝,建築麵積為19.3萬(wan)平(ping)米(mi)。總(zong)體(ti)建(jian)築(zhu)采(cai)用(yong)法(fa)式(shi)建(jian)築(zhu)的(de)設(she)計(ji)手(shou)法(fa),引(yin)入(ru)了(le)法(fa)國(guo)風(feng)情(qing)文(wen)化(hua)街(jie),打(da)造(zao)滇(dian)越(yue)鐵(tie)路(lu)上(shang)亮(liang)麗(li)的(de)名(ming)片(pian)。目(mu)前(qian)一(yi)期(qi)建(jian)設(she)工(gong)程(cheng)全(quan)部(bu)竣(jun)工(gong),回(hui)遷(qian)銷(xiao)售(shou)已(yi)全(quan)麵(mian)展(zhan)開(kai)。
zhangwenqingdongshichangzhichu,kunmingdonghuajiufanggaizaoxiangmudeshishi,weiquanguozhongfanglaojiuzhufanggaizaogongchengchuangxinlemoshi,zongjielejingyan,tixianlepuhuiminsheng,chengshigengxin,shengtaihuanbao,wenhuatishengdefazhanmubiao。fuheshijiudajingshen,shigaigekaifangsishinianchengguodebuduanyanxu。
.jpg)
.jpg)
.jpg)
.jpg)
.jpg)
.jpg)
.jpg)